Verbunden für alle Generationen

Heute 1x angesehen
Reserviert
Baujahr 1890
Grundstück 596 m²
Wohnfläche 240,01 m²
Zimmer 7.5
Badezimmer 2
Schlafzimmer 5

Objektbeschreibung

Dieses Wohnensemble in der Gisbertstraße 16 in Köln-Stammheim vereint zwei eigenständige Häuser zu einem vielseitigen Gesamtobjekt mit rund 240 m² Wohnfläche auf einem 596 m² großen Grundstück.

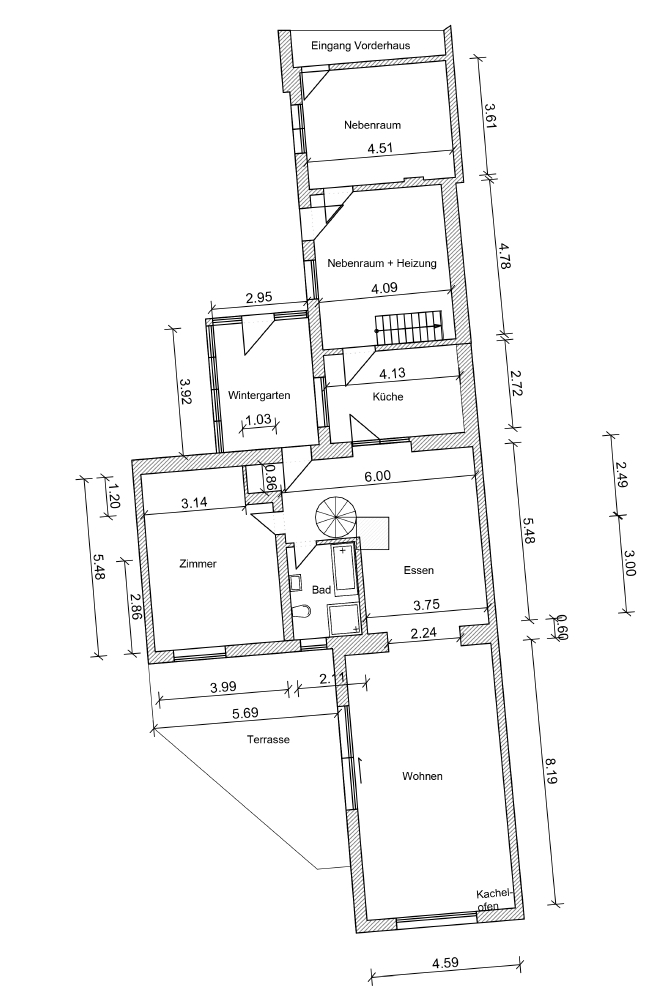
Das Vorderhaus stammt aus dem Jahr 1890 und wurde 2013 umfassend modernisiert – inklusive Dämmung, neuem Dachausbau und überarbeitetem Bodenbelag. Es verfügt über 3,5 Zimmer, darunter zwei Schlafzimmer, ein Tageslichtbad inkl. Dusche und Bad und ein separates Büro. Das Wohnzimmer mit Kamin und die angrenzende Küche mit Essbereich schaffen ein wohnliches Ambiente.
Das Vorderhaus ist seit dem 01.07.2021 für eine Kaltmiete von 850 Euro pro Monat vermietet.

Das Hinterhaus, Baujahr 1978, ist leerstehend und bietet einen großzügigen Wohn- und Essbereich mit Kamin und direktem Zugang zur Terrasse und zum Garten. Ein Wintergarten im Eingangsbereich sorgt zusätzlich für Licht und Großzügigkeit. Eine separate Küche, ein Tageslichtbad, ein Schlafzimmer im Erdgeschoss sowie Schlafzimmer im Dachgeschoss runden das Raumangebot ab.

Beide Gebäude sind mit einem Zwischenbau miteinander verbunden, in der sich auch die zentrale Gasheizung befindet. Der Innenhof schafft einen geschützten Außenbereich, während der Garten hinter dem Haus zusätzliche Aufenthaltsqualität bietet – ideal für Familien oder ein Mehrgenerationenwohnen mit klarer Aufteilung zwischen den Wohneinheiten.

Alle Daten

Objektnr:

567021862v1

Straße:

Gisbertstraße 16

Ort:

51061 Köln

Wohnfläche:

ca. 240 m²

Objekttyp:

Einfamilienhaus

Grundstücksfläche:

ca. 596 m²

Terrasse:

Ja

Objektzustand:

Gepflegt

Objektnr:

567021862v1

Objekttyp:

Einfamilienhaus

Straße:

Gisbertstraße 16

Ort:

51061 Köln

Wohnfläche:

ca. 240 m²

Grundstücksfläche:

ca. 596 m²

Terrasse:

Ja

Objektzustand:

Gepflegt

Ausstattung

Vorderhaus:

• 3,5 Zimmer

• Wohnfläche: 113,37 m²

• Baujahr: 1890

• Tageslichtbad inkl. Bad & Dusche

• Kamin

• Gaszentralheizung

• Saniert (2013): Dachausbau, Fußböden & Dämmung

• Vermietet (07.2021): 850 Euro/Monat (kalt)

• Bedarfsausweis, 317,1 kWh/(m²a), H, gültig bis 21.09.2035

Hinterhaus:

• 4 Zimmer

• Baujahr: 1978

• Wohnfläche: 126,61 m²

• Tageslichtbad inkl. Bad & Dusche

• Wintergarten, Terrasse & Garten inkl. Gartenhaus

• Kamin

• Gaszentralheizung

• Leerstehend

• Bedarfsausweis, 413,3 kWh/(m²a), H, gültig bis 21.09.2035

Lage

Gisbertstraße 16, 51061 Köln

Die Immobilie befindet sich in der Gisbertstraße 16 im Kölner Stadtteil Stammheim, einer ruhigen und grünen Wohnlage direkt am Rhein im rechtsrheinischen Norden der Stadt. Das Umfeld ist geprägt von gepflegten Ein- und Zweifamilienhäusern, kleinen Mehrparteienhäusern und gewachsenen Nachbarschaften. Stammheim gilt als familienfreundlicher Stadtteil mit hoher Wohnqualität und guter sozialer Infrastruktur.

Einkaufsmöglichkeiten für den täglichen Bedarf, Bäckereien und kleinere Fachgeschäfte befinden sich im Ortskern und sind schnell erreichbar. Kindergärten, Grund- und weiterführende Schulen liegen in unmittelbarer Nähe. Das Schlosspark-Areal mit seinen weitläufigen Grünflächen, Skulpturen und Spielplätzen bietet einen hohen Freizeitwert und ist ein beliebter Treffpunkt für Spaziergänge und Erholung.

Die Anbindung an den öffentlichen Nahverkehr ist sehr gut: Die Buslinien 152 und 153 sowie die S-Bahn S6 verbinden Stammheim mit den angrenzenden Stadtteilen und der Kölner Innenstadt. Über die nahegelegene A3 und A59 sind Leverkusen, Düsseldorf und das Kölner Zentrum in kurzer Zeit erreichbar. Durch die Nähe zum Rhein und die gute Infrastruktur verbindet Stammheim urbanes Wohnen mit naturnaher Lebensqualität.

360° Rundgang

Grundriss

Energiedaten

A B C D E F G H 317.1
Energieverbrauchskennwert: 317.1 kWh/(m²*a)
Energieeffizienzklasse: H
Energieausweisdatum: 22.09.2025
Heizungsart: Gasheizung
Befeuerungsart: Gas
Gültig bis: 21.09.2035

Weitere Inserate

Haus

Wohnung

Grundstück

Neubau